FOOD
언젠가 직접 집을 짓겠다는 꿈을 꾸고 있다면, 당신이 필독해야 할 안내서
훌쩍 뛰어버린 아파트 가격을 생각하면 한때 철없는 꿈 취급을 받던 ‘서울에 내 집 짓기’도 이젠 전혀 이룰 수 없는 소망은 아니다. 하지만 과연 내 집 짓기의 걸림돌이 비용 문제뿐일까? 건축가 신현보는 건축주가 되는 건 정말 피곤하고 어려운 일이라고 말한다. 하지만 준비만 잘한다면 ‘꿈’을 실현하는 것도 얼마든지 가능하다고.
전체 페이지를 읽으시려면
회원가입 및 로그인을 해주세요!
내 집 짓기는 힘든 일이다. 계획이 진행될수록 처음 가슴에 품은 이미지는 사라지고, 현실적 제약이 끝도 없이 등장하며, 예산은 자꾸 불어나기만 한다. 모두 나를 속이는 것 같고, 혼란 속에 결국 정말로 나쁜 이의 손을 잡기도 한다. 정신력이 파탄 나면 자칫 스스로와 주변 모두를 괴롭히는 괴물이 될 수도 있다. 하지만 사실은 약간의 사전 지식과 마음가짐만으로도 즐겁고 성공적인 집짓기를 할 수 있다. 모든 건축물은 저마다의 과정을 거치지만, 오래도록 많은 건축주를 만나다 보니 모두에게 유효할 질문이 몇 남았다. 내 집 짓기에 대한 막연한 꿈이 있다면 한번 훑어보면 좋을 것이다.
1. 왜 짓는가
직접 집을 짓고자 한다면, 응당 가장 먼저 자문해야 할 것은 이런 질문이다. ‘나는 왜 집을 지으려 하는가?’ 물려받은 땅이 있어서? 전원생활이 육아에 좋을 것 같아서? 직장 근처 신도시 주택지를 좋은 가격에 분양받아서? 아니면 조금 낭만적으로, 늘 텃밭과 정원이 있는 삶을 꿈꿔왔기 때문에? 은퇴 후 부부의 삶은 내 집 짓기에서 시작한다는 이미지 때문에?
답을 내놓았다면, 이번에는 다시 되물어야 한다. 공기는 좋은데 출퇴근은 감당이 될까? 매일 아이를 통학시킬 수 있을까? 마음과 달리 내 몸은 아파트를 원하고 있지 않나? 나와 가족의 낭만이 다르지는 않나? 잔디밭을 가꾸며 노동의 즐거움에 빠져본 적이 있나?
괜한 질문들 때문에 고민만 느는 것 같다고 할지도 모르겠다. 만약 그렇다면 한 번 더 생각해보기를 권한다. 단독주택 짓기는 수익사업이 아닌 소비 행위다. 내 집 짓기가 인생의 마지막 목표였던 시대도 있었지만, 지금은 그렇지 않다. 아이가 아직 어릴 때 적은 예산으로 작은 주택을 지어 살다가 자녀가 크면 거꾸로 아파트로 이사 가는 경우도 많다. 덕분에 매물로 나오는 단독주택의 규모가 다양해졌다. 일단 매입해서 한번 살아보고, 그 다음 단계에서 집짓기를 실천하는 것도 좋은 대안이 될 수 있다.
2. 어디에 지어야 하는가
확신이 섰다면 땅을 찾아야 한다. 시골의 나대지, 민간 개발지, 신도시의 주택 필지…. 물론 여유가 있다면 대도시 한복판도 모두 좋다. 중요한 건 내 꿈과 어울리는가 하는 것이다. 건축은 땅을 닮는다. 이 단계가 이미 건축의 시작이다. 땅을 먼저 매입한 후 그 땅을 기반으로 건축가에게 의뢰를 해야 한다고 생각하는 사람이 많은데, 가능하면 땅을 고를 때부터 도움을 받는 것이 좋다. 물론 건축가는 공인중개사가 아니니 모든 발품팔이를 함께하기는 어렵다. 하지만 후보지가 두세 개로 좁혀졌을 때나 최종 결정을 내리기 전에는 미리 건축가를 찾아보고, 필요하다면 비용을 들여 상담받기를 권한다. 추후의 큰 손해를 막아주는 아주 저렴한 보험이니까. 건축가는 건축의 관점에서 각 후보지의 장단점과 함께 집짓기 목표와의 적합성에 대해 조언해줄 것이다.
3. 누구를 찾아갈 것인가
요즘은 대부분 설계사와 시공사의 차이 정도는 알고 있다. 하지만 둘 중 누구를 먼저 찾아가야 하는지는 여전히 종종 헷갈려 하는 듯하다. 반드시 설계자(건축가)를 먼저 찾아야 한다. (혹여 시공자를 먼저 찾아갔다 하더라도 그가 좋은 시공자라면 순서가 잘못됐다고 답해줄 것이다.) 그렇다면 어떤 건축가를 선택해야 할까? 되도록 다양하게 만나보고 비교해보기를 권한다. 웹서핑을 하거나, 평소에 눈여겨본 집이 있다면 찾아가서 건축가를 물어보는 것도 좋다. 무엇보다 당신의 말을 경청하는 사람을 찾아라. 무작정 ‘내가 이 일대 집을 다 지었는데~’라는 식의 자랑으로 대화를 시작하거나, ‘공짜 설계를 해주겠다’는 조삼모사 식의 유혹을 한다면 바로 걸러야 한다. 집짓기의 꿈은 허풍과 공짜에 투자해 이룰 수 있을 만큼 가볍지 않다.
설계비는 건축가마다 다르게 산정되지만, 그렇다 해도 대지 구입비나 시공비에 비하면 아주 작은 부분이다. 때문에 설계비를 기준으로 건축가를 고르는 건 그리 좋은 생각이 아니다. 내 꿈을 이루는 과정 전반을 함께할 사람이니까. 건축가의 이전 프로젝트들이 내 성향과 맞는지, 작업 방식은 어떤지, 내 꿈에 진정성 있게 반응하는지, 심지어 인상이 마음에 드는지도 따져보시라. 서로 궁합이 잘 맞아야 오랜 기간 함께하며 좋은 집을 만들어갈 수 있다.
4. 어떤 계획을 준비해야 하는가
건축가에게 당신의 계획을 전달하고자 할 때, 주의할 것들이 있다. 첫째는, ‘내 정보를 감추지 말 것’. 건축가는 건축주의 막연한 꿈을 공간으로 구현해주는 사람이다. 꿈의 배경이 되는 개인적 이야기나 경제적 상황까지도 알아야 건축가는 제대로 된 제안을 할 수 있다. 계획이 한참 진행된 후에야 “사실은 제가~” 화법으로 하나씩 숨겨둔 사실이 등장하면 그간의 노력이 초기화되거나 혹은 큰 그림을 보지 못해 계획안이 누더기가 될 수도 있다.
둘째는, ‘너무 구체적으로 요구하지 말 것’. 인상 깊었던 프로젝트를 보여주며 취향을 전달하거나, 방문했던 모델하우스의 전단지를 보여주며 원하는 생활방식에 대해 이야기할 수 있다. 스스로 열정적인 계획안을 그려서 보여주는 것도 멋진 대화 수단이 될 수 있다. 하지만 ‘이대로 똑같이 해주면 된다’거나, ‘내가 다 계획해놨으니 바로 진행하면 된다’고 하는 것은 앞에 놓인 무궁무진한 가능성을 일거에 덮어버리는 셈이다.
가장 좋은 태도는 의도를 솔직하고 남김없이 전하되, 건축가가 일할 여지는 많이 남겨주는 것이다. 개인적으로는 요구사항을 글로 적거나, 글이 어려우면 찾아놓은 이미지를 함께 보며 설명해주는 건축주를 선호한다. ‘아침에 일어나 한 걸음만 떼면 정원에 발을 딛고 싶다’거나, ‘우리 가족은 함께 모여 텔레비전을 보는 일이 거의 없다’거나 하는, 스스로 생각하기에는 너무 사소한 소망이나 생활 패턴도 큰 도움이 된다. 이를 조합하여 공간으로 재해석하는 것이 건축가의 일이다. ‘거실과 부엌은 합치고, 2층으로 하되, 경사 지붕과 붉은 벽돌을 써라’ 같은 디테일한 요구는 건축가의 일을 줄여주겠지만, 동시에 꿈의 실체를 발견할 가능성도 줄여버린다.
5. 어떻게 소통해야 하는가
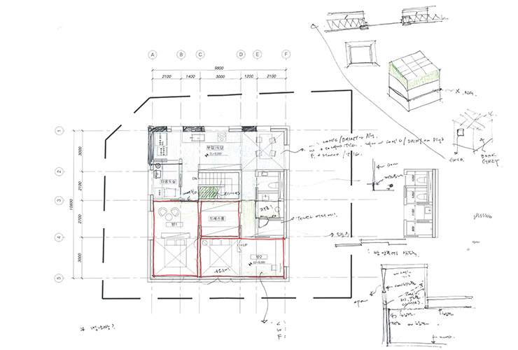
이후 건축가와의 소통 과정은 일종의 컨설팅과도 같다. 건축가마다 소통 수단도 다르고, 같은 건축가라도 프로젝트나 계획 단계별로 다른 방식을 사용하기 때문에 일반화하기는 어렵다. 개인적으로는 가능한 모든 방식을 활용한다. 초반에는 단순히 대화만 하기도 하고, 대지의 상황을 분석하기 위한 브리핑도 한다. 물론 예산 활용을 위한 현실적인 대화도 나눈다. 건축주의 이해를 돕기 위한 모형, CG, 스케치, 도면 등도 번갈아 제시한다. 이 과정을 반복하다 보면 어느새 건축주도 도면을 통한 소통에 익숙해진다. 그러면 서로 메모를 주고받거나, 도면에 그림을 덧대가며 이야기를 나누기가 용이해진다. (해당 기사에 활용된 이미지는 소보건축사무소에서 진행한 ‘3×4’ 프로젝트 당시 도면에 주고받은 노트다.)
그런데 이 설계 과정은 사실 ‘꿈꿔왔던 집’을 ‘예산에 맞는 집’으로 바꿔가는 과정이기도 하다. 마음 아프지만 건축주의 꿈을 깎아내고 다듬어가는 것도 건축가의 일이다. 희망적인 부분은 그 와중에 때로는 건축주 스스로도 몰랐던 꿈을 발견하기도 하고, 건축가의 부족했던 상상력을 건축주가 촉발시키기도 한다는 것이다.
6. 어떤 마음가짐이 필요한가
시공은 계획안이 현실로 드러나는 마법 같은 단계다. 그러나 반대로 집이 조금씩 모습을 드러내면서, 충분히 이해했다고 생각했던 계획안이 계속 다르게 보일 수도 있다. 확신이 떨어지고 마음이 흔들린다. 게다가 공사 과정 전반에서 만나는 각 공사 분야의 전문가들이 무심코 던지는 집에 대한 품평 하나하나가 상처가 된다. 이를 견뎌내지 못하면 결국 공사 중에 무리한 계획 변경을 요청하게 된다. 그렇게 수정을 하다 보면 아무리 노력해도 놓치는 부분이 생겨나고 추후 하자로 이어질 가능성도 크다. 변경이 많은 프로젝트는 결코 최상의 지점에 도달할 수 없다. 흔들리지 않을 자신이 없다면 가능한 한 공사 현장을 방문하지 않는 것도 방법이다.
좋은 건축가는 시공 과정에서도 제 역할을 한다. 프로젝트 전체를 가장 오랜 기간 잘 이해하고 있는 사람은 건축주와 건축가다. 부분부분 다른 의견이 많겠지만, 늘 단독으로 결정하지 말고 건축가와 상의해야 한다. 건축가에게도 계획의 안정적인 실현은 중요한 과제다. 건축가 역시 건축주만큼이나 프로젝트를 아끼고 사랑하기 때문이다.
Who’s the writer?
신현보는 소보건축사사무소의 공동대표며 한남대학교 건축학과 교수다. 건축의 재료와 구조를 의미 있게 사용하기 위해 노력하고 있다. 대표적인 주택 작업으로 동동재, 3×4, 6 gardens, Zeppelin 등이 있다.
Credit
- EDITOR 오성윤
- WRITER 신현보
- IMAGES 소보건축사사무소
- ART DESIGNER 주정화
MONTHLY CELEB
#우도환, #이상이, #성시경, #박보검, #이종석, #정경호, #조나단앤더슨, #윈터, #김우빈
이 기사도 흥미로우실 거예요!
MOST LIKED ARTICLES
실시간으로 업데이트 되는
에스콰이어의 최신소식